| 材質 | 碳鋼 |
|---|---|
| 形態 | 蝶式 |
| 連接形式 | 法蘭 |
| 驅動方式 | 手動 |
| 流動方向 | 雙向 |
| 公稱通徑 | 〖〖臺灣品質〗〗 |
| 零部件及配件 | 配件 |
| 外形 | 中型 |
| 標準 | 國標 |
| 壓力環境 | 常壓 |
| 工作溫度 | 常溫 |
| 類型(通道位置) | 二通式 |
| 適用介質 | 水 |
| 品牌 | 工洲 |
| 型號 | 〖〖臺灣品質〗〗 |




一、產品[防水逆水封閥]的詳細資料:
產品型號:F43X
產品名稱:防水逆水封閥
產品特點:工洲牌F43X 1.0型防逆水封閥是工洲公司高級工程技術人員參照國外技術研究開發的最新產品,主要應用干清、蓄水池溢流管道上.平時固閥內有水封可阻止下水管道臭氣進入清水池,因太雨或下水道堵塞等造成雨污水管水位增高時可阻止污水倒灌清水池,是良好的供水衛生保護裝置。

二、主要性能:
本閥結構簡單,溢流順暢無阻,具有雙重水封作用。阻隔臭氣及污水倒灌,性能可靠,效果良好,且污水倒灌時所帶雜物亦不影響密封性能。
三、工作原理:
F43x10T防逆水封目主要由帶存水彎的閥體及浮球蓋板組件等組成.帶浮球的蓋板蓋在閥體的密封閥座上,將閥腔分成內外兩部分,內腔為清水部分,外腔通排水管道,當內腔充滿清水時,目位于內臟的浮球作月,蓋板壓力降低,易于開啟通流。溢流停止后,蓋扳可自行復位.蓋嚴閥座.從而可嚴格組斷臭氣殛污水倒灌。如果水池進水口浮球閥*關良好.數年不溢流,閥腔無水,浮球可加重蓋板重量.更好地蓋嚴目座,目樣可嚴格姐隔臭氣及防止雨,污水倒灌清水池。如果污水進入閥體外腔.所帶雜物僅能粘附在蓋板外表面,不影響蓋柱封嚴闐座。故該防逆水月工作可靠.效果好,不易出故障。且當有雜物沉淀時.T次溢流時可自動沖出閥體。
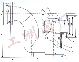
四、工洲牌防水逆水封閥主要外形尺寸:
DN | D | D1 | D2 | L | H | H0 |
80 | 200 | 1 60 | 135 | 500 | 380 | 85 |
1 00 | 220 | 180 | 155 | 560 | 420 | 85 |
1 50 | 285 | 240 | 210 | 690 | 51 0 | 85 |
200 | 340 | 295 | 265 | 825 | 600 | 95 |
250 | 395 | 350 | 320 | 945 | 700 | 95 |
300 | 445 | 400 | 368 | 1065 | 795 | 95 |
400 | 565 | 51 5 | 480 | 1308 | 930 | 100 |
500 | 670 | 620 | 582 | 1531 | 1080 | 100 |
600 | 780 | 725 | 682 | 1770 | 1250 | 100 |
700 | 895 | 840 | 794 | 2013 | 1440 | 120 |
800 | 1015 | 950 | 901 | 2246 | 1610 | 120 |
900 | 1115 | 1050 | 1010 | 2450 | 1810 | 120 |
1000 | 1230 | 1160 | 1110 | 2695 | 1940 | 120 |
1200 | 1 455 | 1 380 | 1320 | 2700 | 1780 | 140 |
1400 | 1 675 | 1 590 | 1530 | 31 00 | 2080 | 1 40 |
五、技術參數:
公稱壓力:PNl 6—2 5M Pa
公稱通徑:1 5~300
容氣腔壓力(占管道壓力百分數)50~70%
適用介質無雜物的清水、污水
適用介質溫度0~80℃
法蘭標準:68/T l 7241 6 68/T 91 1 3
試驗標準:GB/T l 3927 APl 598
六、工洲牌防水逆水封閥主要外形連接尺寸:
DN | 管徑 | 1/2” | 3/4” | 1” | 11/4” | 11/2” | 2” | 21/2” |
mm | 15 | 20 | 25 | 32 | 40 | 50 | 65 | |
L | 1.6MPa | 200 | 300 | 320 | 340 | .350 | 365 | 465 |
2.5MPa | 220 | 320 | 340 | 355 | 380 | 385 | 485 | |
DN | 管徑 | 3” | 4” | 5” | 6” | 8” | 10” | 12” |
mm | 80 | 100 | 125 | 150 | 200 | 250 | 300 | |
L | 1.6MPa | 510 | 575 | 600 | 645 | 755 | 855 | 955 |
2.5MPa | 520 | 585 | 600 | 645 | 755 | 855 | 955 |
◇◇為什么選擇工洲閥門?
服務體系:
一、支持7天無理由退換貨
二、支持30天有問題退換貨
三、完全免費保修一年
質量體系:
在閥門行業技術含量并不是很高的情況下,選材跟檢驗是保證質量的重中之重,故我公司從以下兩方面進行把關。
一、我公司設采購部同時,多設采購質檢部來保證采購物品達到國家及國際標準。
二、按照臺灣先進的檢驗理念和臺灣的精湛的檢驗工藝、經多次檢驗無問題才準許出廠。
付款體系:
一、支持貨到付款
二、支持支付寶、百付寶付款
價格體系:
一、高效內部成本控制,減少了開支,讓利于客戶
交貨體系:
一、充足的備貨,縮短了交貨期
〖〖我公司是阿里巴巴誠信通三年老會員,歡迎訪問我公司阿里巴巴網站//lfyallf.cn./〗〗
訂貨須知:
一、①防水逆水封閥產品名稱與型號②防水逆水封閥口徑③防水逆水封閥是否帶附件以便我們的為您正確選型。
二、若已經由設計單位選定工洲公司的防水逆水封閥型號,請按防水逆水封閥型號直接向我司銷售部訂購。
三、當使用的場合非常重要或環境比較復雜時,請您盡量提供設計圖紙和詳細參數,由我們的工洲閥門專家為您審核把關。
感謝您訪問我們的網站【//www.gggzzz.com】,如有任何疑問.您可以致電給我們,我們一定會盡心盡力為您提供優質的服務。






紙箱、泡沫或木箱包裝,江浙滬皖多發快遞,其它地方10公斤之內發快遞,10公斤以上發物流(需到物流站自提),10公斤以上發快遞需補郵費,如還有其它問題請聯系我們客服。

我公司為一般納稅人只能開17%增值稅專用發票,含稅需以上價格再上浮17%,開票請提供開票資料。
我公司開不了普通發票,如要可用其它臺頭開普票,需以上價格上浮6%,如還有其它發票問題請聯系我們。

售后服務承諾
1.閥門類設備提供免費維修一年并提供在此期限內的免費備件清單,免費維保期間內如發生非人為原因引起的損壞(不可抗力原因除外),我公司將及時免費更換和修理。
2.設備要求實行終身包修,免費保修期滿后買方如委托我公司進行維護保養,我公司將對設備進行維護更換件(出廠價),并詳細列出維保內容。
3.我公司本著以客戶利益為第一,想客戶所想、急客戶所急,盡己所能滿足客戶的要求,做好售后服務。
產品品質承諾
1.我公司從臺灣引進先進加工檢驗技術,按照臺灣先進的設計理念和臺灣的精湛的生產工藝、全面遵循ISO9001-2000質量管理體系,按 GB、JB、SH、HG、CJ 等相關的國內標準以及 ANSI、JIS、BS、DIN 等國外標準設計制造和檢查驗收。
2.對所有分供方都進行考察、評審,所有產品的采購都只在合格分供方進行。對分供方所提供的原材料、外購件、外協件都需經過嚴格復查,檢驗合格后方準入庫;
3.對分供方所提供的鑄鍛件、鑄鋼件、不銹鋼鑄件均具有合格的化學成分分析單與物理性能檢測單;
4.產品制造嚴格執行“雙三檢”制度,不合格零件不轉序、不裝配、不出廠;
5.總裝后按 GB13927、JB/T9092、CJ/T3056 標準進行強度、密封綜合性能測試(介質為水、煤油、氣體);
6.我公司對產品的質量及交貨期負責,產品交貨之日起質保期為一年,終身維護。對于產品質量引起的后果,我公司承擔相應的責任。如因操作不當引起的后果,我公司將以最低成本價對設備進行維護。

中國企業海外收購成功率僅33%國資委警示風險
在過去20年,中國企業的海外并購,以年均17%的速度增長。從1986年至今,海外并購案共有213宗,其中103宗是2001年以來完成的。根據有關機構研究,其中67%的海外收購不成功
7月初,中移動收購Millicom失敗,并沒讓國內媒體感到吃驚。自從去年年中,中海油收購Unocal折戟之后,媒體已被注射“免驚疫苗”。
這兩宗大手筆收購案,本可輝煌中國海外收購史——中移動的報價是53億美元。從報價金額上看,是中國第二大海外收購案,位列中海油收購案之后。中海油的報價是185億美元。在中國的歷次海外收購中,是首次超百億美元嘗試。
但這些嘗試最終都以失敗告終,而且,收購方倒下的位置,其實距離終點并不遙遠。只是二者失敗原因各不相同——中海油源于政治阻力,中移動則是出價太低。
約束收購風險
由于收購并未成功,因此,很難從最終收益上衡量中國國企的海外收購是否真正劃算。但在客觀上,對中海油和中移動而言,確實浪費了管理層的時間、談判費用,以及其他機會成本。
或許正如《福布斯》雜志所評論的,中國的海外收購正處在學習階段。而學習總是要付出相應成本。
其評論員保羅·梅德蒙特稱,中國企業海外收購失敗,除了政治因素之外,還在于管理水平。“這些企業的管理層,在收購經驗上,很難與歐美公司相比。”
耶魯大學管理學院院長、美前商務部副部長杰弗瑞·格登,也曾在一個演講報告中提醒中國企業,在缺乏海外收購經驗的情況下,如果勉強為之,尤其在已經成熟的市場,“是非常危險的”。
在鼓勵國企“走出去”的背景下,杰弗瑞的提醒顯得十分及時。而這正是在不久之前,國資委出臺《央企全面風險管理指引》的原因之一。
國資委通過這份文件規定,央企應該在發展戰略、投資收購、財務報告、內部審計等方面,開展風險管理工作。“通過積累經驗,培養人才,逐步建立健全全面風險管理體系”。
海外擴張沖動
國資委研究中心一位研究員告訴《財經時報》,國資委出臺這個文件,主要是規范央企海外投資,其目的是,避免再出現類似“中航油事件”重演。
他說,國資委顯然已經意識到,如果沒有有效的約束,受海外擴張的沖動支配,有的國企為了收購成功,往往會不計成本,因而帶來國有資產流失。
“我的猜測是,中移動不提高收購報價,一方面可能它確實不劃算;另外,也可能是對這個文件有所考慮。”
不過,這位研究員強調,國資委文件的出臺,并非要阻止企業“走出去”,而是要讓企業“走出去”的步伐更穩當。
實際上,無論是2004年底的聯想收購案,還是2003年底的TCL收購案,都沒能給它們帶來預期的收益。其中,聯想的收購價格為12.5億美元,TCL的收購價為5.6億美元。
根據央行公布的數字,截至今年3月末,中國外匯儲備余額是8751億美元。而人民幣的逐步升值——作為中國匯改的結果,也使企業有相對更多的外匯,去海外尋求更多的投資機會。
重視發展中國家
根據波士頓咨詢公司的研究,在過去20年,中國企業的海外并購,以年均17%的速度增長。從1986年至今,海外并購案共有213宗,其中103宗是2001年以后完成的。
而據麥肯錫的研究,在過去20年,全球大型的企業兼并案中,取得預期效果的比例低于50%。具體到中國,有67%的海外收購不成功。其海外收購的目的,比如獲得先進的技術,大多都沒能實現。
根據波士頓發布的報告,受石油價格上漲的影響,在未來幾年中,中國企業的海外收購,將主要著眼于獲取石油。
去年10月底,中石油以40億美元的價格,收購了哈薩克斯坦PK石油公司。這項收購是中國目前金額最大、并最終得以完成的海外收購案。而去發展中國家進行收購,將成為海外收購的趨勢。
“自去年中海油收購失敗之后,中國企業在展開海外收購時,通常繞過了那些可能會導致西方政府干涉的產業,并把目光轉向發展中國家市場。”在最近的一篇報告中,評論家保羅·梅德蒙特說。我國礦產勘查形勢總體不容樂觀
近年來,隨著經濟快速發展,我國礦產資源的消耗大量增加,供求缺口不斷擴大。2005年,我國原油消費量超過3億噸,鋼材消費量達4億噸,煤炭消費量達21.4億噸,各種礦石的國內開采總量超過70億噸,進口了大量的原油、鐵礦石、銅礦、氧化鋁等。一些主要礦產資源的儲量增長趕不上產量增長,產量增長趕不上需求增長。礦產勘查形勢總體不容樂

